Sale
Rent
Blog
About us
+ Add property
Menu
Offer listings
185 342 £
(2 471 £ / sq m)
Sale
3
1
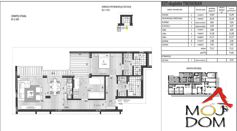
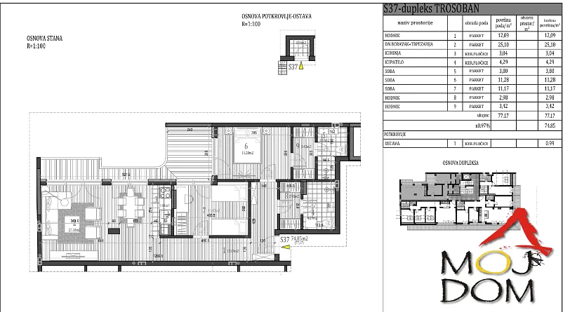
75 sq m
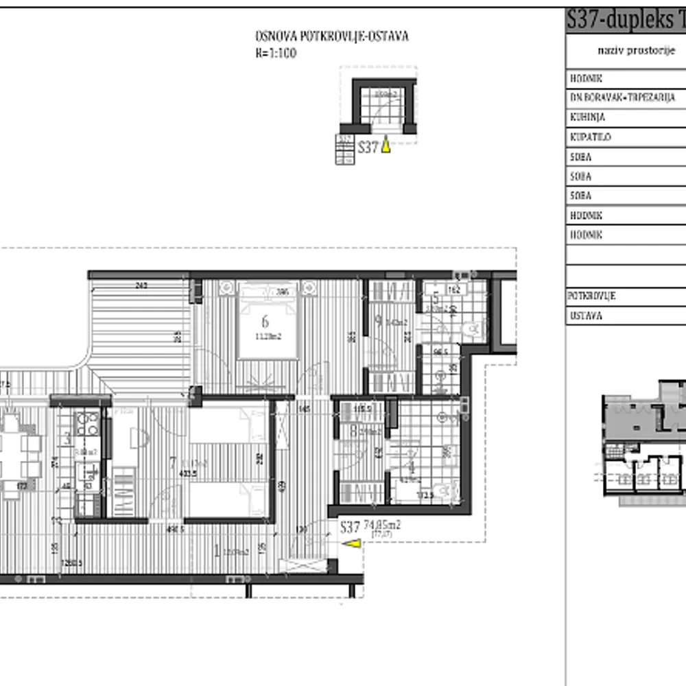
NOVI SAD, NOVA DETELINARA
Show on map
Add to favourites
Share
bedroom
0
area
75 sq m
bathrooms
1
lift
No
parking
No
state
Others
basement
No
terrace
No
Description
Translate to English
Nova Detelinara!
Izgradnja stana visokog kvaliteta na fenomenalnoj lokaciji!
Stan, strukturno odličnog rasporeda i veličine, nalazi se na jednoj od n...
Show full description
Parameters
Parameters
Ownership:
Others
State:
Others
Building Type:
Others
Heating type:
Central remote
Furnishing:
Others
Show all parameters
Offer's age:
283 days
Updated:
282 days
Report listing
Location
NOVI SAD, NOVA DETELINARA
The location is approximate, we don't know the exact address.
Request precise address
Enlarge map
Civic amenities
MOJ DOM - AGENCIJA ZA NEKRETNINE
Dragana Zorić
Show Email
Show Phone
Contact seller
MOJ DOM - AGENCIJA ZA NEKRETNINE
Dragana Zorić
Show Email
Show Phone
Contact seller
Similar listings
|
Similar Abroad
|
Sale
Apartments
Serbia