Sale
Rent
Blog
About us
+ Add property
Menu
Offer listings
7
7
7
78 596 £
(2 183 £ / sq m)
Sale
2
1
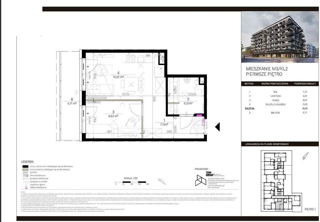
36 sq m
Pawia, KIELCE
Show on map
Add to favourites
Share
bedroom
0
area
36 sq m
bathrooms
1
lift
No
parking
No
state
Others
basement
No
terrace
No
Description
Translate to English
OFERTA DEWELOPERSKA BRAK PODATKU PCC PARAMETRY MIESZKANIA W KOLEKCJI ZDJĘĆ PRZEDSTAWIAMY PAŃSTWU NOWĄ INWESTYCJĘ, POWSTAJĄCA W KIELCACH, W NIEWIELKIEJ...
Show full description
Parameters
Parameters
Ownership:
Others
State:
Others
Heating type:
Central remote
Floor:
1. floor from 6
Offer's age:
106 days
Updated:
3 days
Report listing
Location
Pawia, KIELCE
The location is approximate, we don't know the exact address.
Request precise address
Enlarge map
Civic amenities
NBN Nieruchomości
Biuro Obsługi
Show Email
Show Phone
Contact seller
NBN Nieruchomości
Biuro Obsługi
Show Email
Show Phone
Contact seller
Similar listings
|
Similar Abroad
|
Sale
Apartments
Poland