Sale
Rent
Blog
About us
+ Add property
Menu
Offer listings
5
5
5
119 274 £
(3 313 £ / sq m)
Sale
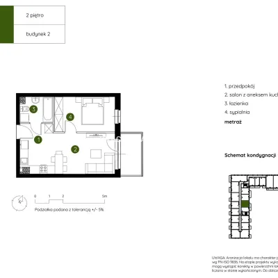
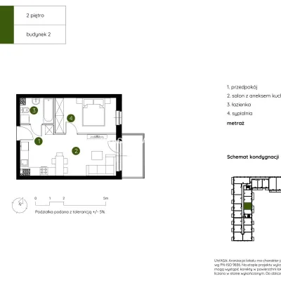
2
1
36 sq m
Pękowicka, Kraków
Show on map
Add to favourites
Share
bedroom
0
area
36 sq m
bathrooms
1
lift
No
parking
No
state
basement
No
terrace
No
Description
Translate to English
Z ogromną przyjemnością przedstawiamy Państwu ofertę mieszkania na sprzedaż w malowniczym rejonie Doliny Prądnika, na północy Krakowa, blisko granicy...
Show full description
Parameters
Equipment & Features
Internet
Parameters
Ownership:
Others
Building Type:
Others
Heating type:
Others
Furnishing:
Others
Offer's age:
23 days
Updated:
5 days
Report listing
Location
Pękowicka, Kraków
The location is approximate, we don't know the exact address.
Request precise address
Enlarge map
Civic amenities
BRACIA SADURSCY
Patrycja Rubinkiewicz
Show Email
Show Phone
Contact seller
BRACIA SADURSCY
Patrycja Rubinkiewicz
Show Email
Show Phone
Contact seller
Similar listings
|
Similar Abroad
|
Sale
Apartments
Poland