Prodej
Pronájem
Blog
O nás
+ Přidat nemovitost
Menu
Výpis nabídek
5
127 450 £
(3 862 £ / m²)
Prodej
1
1
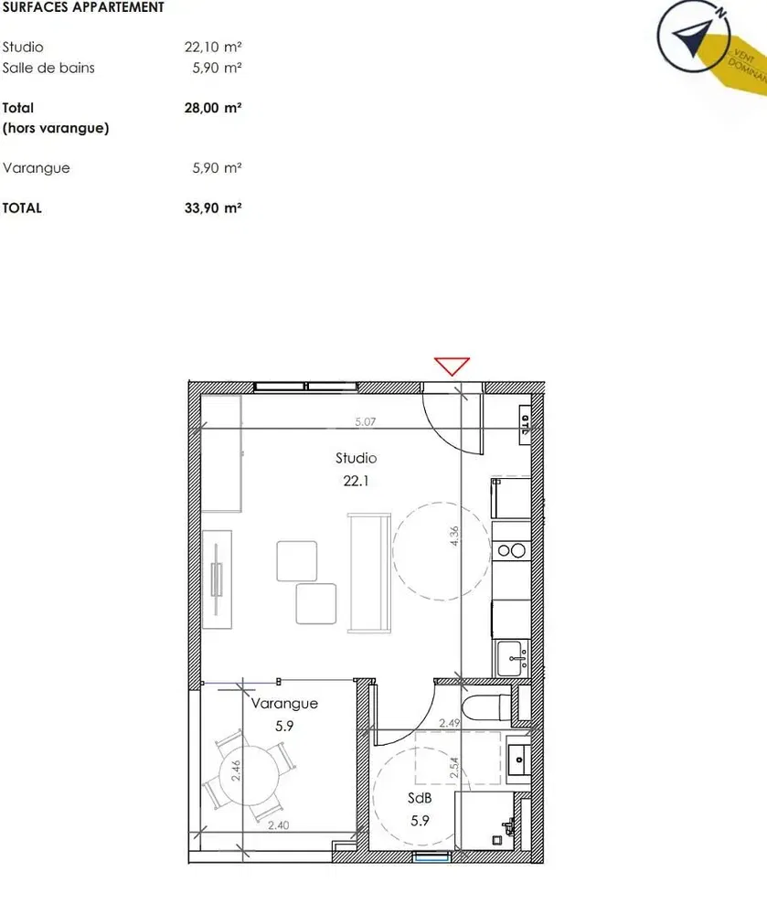
33 m²
Zobrazit na mapě
Do oblíbených
Sdílet
ložnice
1
plocha
33 m²
koupelny
1
výtah
Ne
parkování
Ne
stav
Ostatní
suterén
Ne
terasa
Ne
Popis
Nichée dans un écrin de verdure La Résidence Harmonie de 6 bâtiments composés de T1, T1 bis, T2 et T3 ,83 places de parking dont 2 PMR, espaces verts...
Zobrazit celý popis
Parametry
Parametry
Vlastnictví:
Ostatní
Stav:
Ostatní
Typ budovy:
Ostatní
Typ vytápění:
Ostatní
Vybavení:
Ostatní
Zobrazit všechny parametry
Stáří nabídky:
16 dní
Aktualizováno:
16 dní
Nahlásit inzerát
Lokalita
Lokalita je orientační, neznáme přesnou adresu.
Požádat o přesnou adresu
Zvětšit mapu
Občanská vybavenost
l'Adresse Guyane - Martinique - l'Adresse Guyane - Cayenne
Zobrazit telefon
Kontaktovat prodejce
l'Adresse Guyane - Martinique - l'Adresse Guyane - Cayenne
Zobrazit telefon
Kontaktovat prodejce
Podobné inzeráty
|
Podobné v zahraničí
|
Sale
Apartments
Guyana