Sale
Lease
Blog
About us
+ Add property
Menu
List of offers
7
7
7
151 400 £
(1 992 £ / m²)
Sale
Atypical
1
76 m²
Републиканска
Show on map
Add to favorites
Share
bedroom
atypical
flat
76 m²
bathrooms
1
lift
No
parking
No
state
Other
basement
No
terrace
No
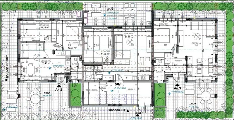
Description
Предлагаме за продажба тристаен апартамент в престоящо строителство в м.Буджака, гр.Созопол. Апартаментът е с площ от 76,18 кв.м., разположен на парт...
Show full description
Parameters
Parameters
Ownership:
Other
state:
Other
building type:
Other
Heating type:
Other
Equipment:
Other
Age of the offer:
4days
Updated:
4days
Report ad
Localities
Републиканска
The location is approximate, we do not know the exact address.
Request exact address
Enlarge map
Civic amenities
НАТАЛИЯ ХОУМ
Show phone
Contact seller
НАТАЛИЯ ХОУМ
Show phone
Contact seller
Similar ads
|
Similar abroad
|
Sale
Apartments
Bulgaria