Sale
Lease
Blog
About us
+ Add property
Menu
List of offers
701 195 £
(2 616 £ / m²)
Sale
Atypical
1
268 m²
Симеоновска
Show on map
Add to favorites
Share
bedroom
atypical
flat
268 m²
bathrooms
1
lift
No
parking
No
state
Other
basement
No
terrace
No
Description
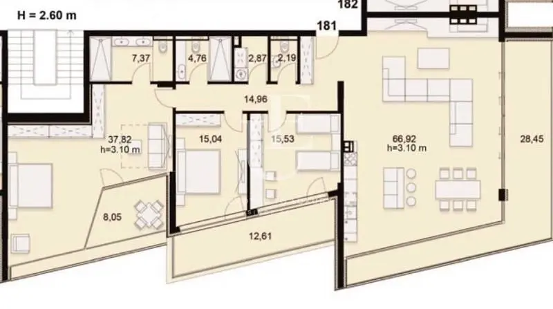
Просторен апартамент с 3 спални и гледки към Витоша планина в комплекс Морени. Дневна 67 кв.м Дневна 67 кв.м Мастър бедрум 37 кв.м със собствена ба...
Show full description
Parameters
Parameters
Ownership:
Other
state:
Other
building type:
Other
Heating type:
Other
Equipment:
Other
Age of the offer:
6days
Updated:
6days
Report ad
Localities
Симеоновска
The location is approximate, we do not know the exact address.
Request exact address
Enlarge map
Civic amenities
ЮНИК ЕСТЕЙТС
Show phone
Contact seller
ЮНИК ЕСТЕЙТС
Show phone
Contact seller
Similar ads
|
Similar abroad
|
Sale
Apartments
Bulgaria