SUPA24
Wohnzimmer
Wohnzimmer
Wohnzimmer
Wohnzimmer
Wohnzimmer
750 €
(22 € / m²)
Mieten
Atypisch
1
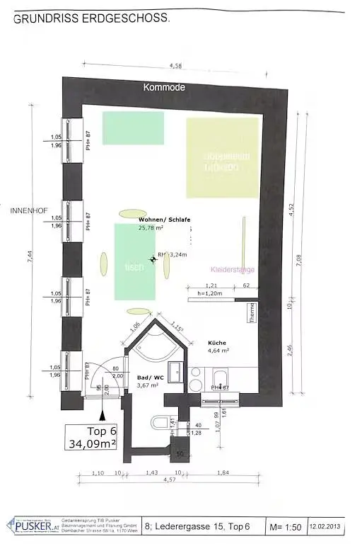
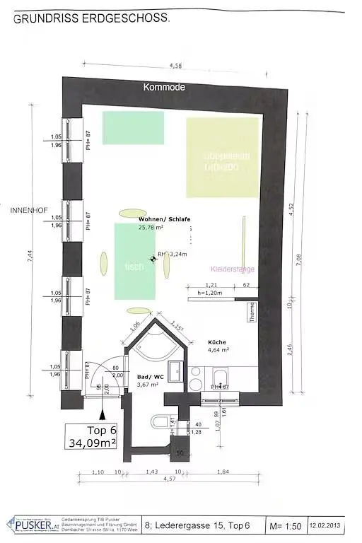
34 m²
Lederergasse, Josefstadt

schlafzimmeratypical
wohnung34 m²
badezimmer1
aufzugNEIN
parkenNEIN
zustandAndere
kellerNEIN
terrasseNEIN

Beschreibung

For more details, please visit https://housinganywhere.com/room/ut1196595/at/Vienna/lederergasse?utm_medium=affiliate&utm_source=list_globally&affilia...

Parameter

Parameter

Eigentum:
Andere
Zustand:
Andere
Gebäudetyp:
Andere
Heizungsart:
Gas
Ausrüstung:
möbliert
Alter des Angebots: 424Tage
Aktualisiert: 2Tage

Ortschaften

Lederergasse, Josefstadt
Die Standortangabe ist nur ungefähr, wir kennen die genaue Adresse nicht.

Öffentliche Einrichtungen

HousingAnywhere


Ähnliche Anzeigen

Ähnliches im Ausland