SUPA24
Wohnzimmer
Wohnzimmer
Wohnzimmer
Wohnzimmer
Wohnzimmer
1 350 €
(40 € / m²)
Mieten
Atypisch
1
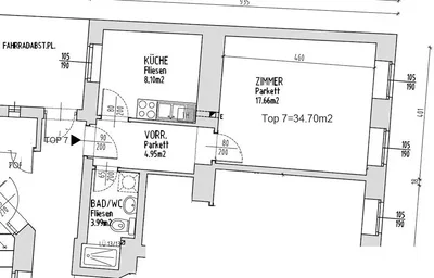
34 m²
Lacknergasse, Hernals

schlafzimmeratypical
wohnung34 m²
badezimmer1
aufzugNEIN
parkenNEIN
zustandAndere
kellerNEIN
terrasseNEIN

Beschreibung

For more details, please visit https://housinganywhere.com/room/ut1534911/at/Vienna/lacknergasse?utm_content=Vienna&utm_medium=affiliate&utm_source=li...

Parameter

Parameter

Eigentum:
Andere
Zustand:
Andere
Gebäudetyp:
Andere
Heizungsart:
Gas
Ausrüstung:
möbliert
Alter des Angebots: 24Tage
Aktualisiert: 24Tage

Ortschaften

Lacknergasse, Hernals
Die Standortangabe ist nur ungefähr, wir kennen die genaue Adresse nicht.

Öffentliche Einrichtungen

HousingAnywhere


Ähnliche Anzeigen

Ähnliches im Ausland