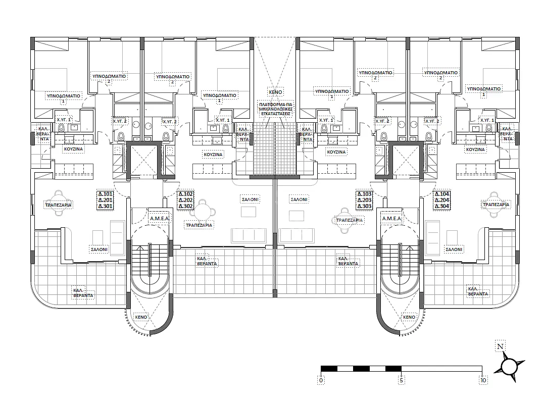
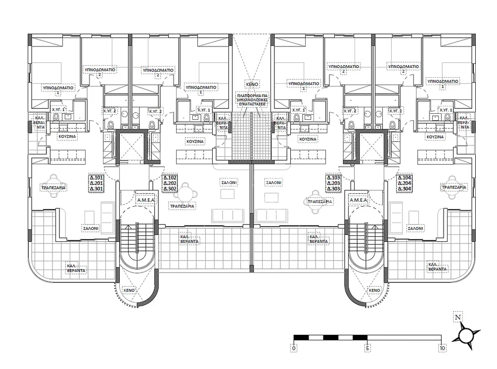
Property Highlights: • Prime Location: o Nestled in the sought-after area of Acropolis-Strovolos. o Walking distance to ARETAIO Hospital, supermark...
Parameter
Parameter
Eigentum:Die Art des Eigentums bestimmt das rechtliche Verhältnis zum Eigentum – persönliches, genossenschaftliches oder staatliches/kommunales Eigentum.
Andere
Zustand:Der aktuelle Zustand der Immobilie im Hinblick auf die Sanierung – vor, nach oder während der Sanierung.