Verkauf
Miete
Blog
Über uns
+ Angebot hinzufügen
Menü
Angebotsauflistung
Verkauft
13
13
Verkauft
13
392 527 €
(6 768 € / m²)
Verkauf
2
1
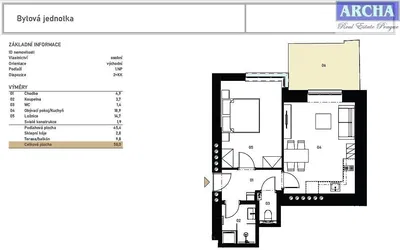
58 m²
Praha 6
Auf Karte anzeigen
Zu Favoriten
Teilen
schlafzimmer
2
fläche
58 m²
badezimmer
1
aufzug
Nein
parken
Ja
status
Sonstige
kellergeschoss
Ja
terrasse
Ja
Beschreibung
Übersetzen nach Deutsch
Prodej bytu o dispozici 2+kk je součástí rezidenčního projektu na Praze 6 Břevnov, který vzniká kompletní rekonstrukcí bytového domu v jedné z nejklid...
Vollständige Beschreibung anzeigen
Parameter
Parameter
Eigentum:
Persönlich
Status:
Sonstige
Gebäudetyp:
Ziegel
Heizungsart:
Sonstige
Möbliert:
Nicht eingerichtet
Alle Parameter anzeigen
Angebotsalter:
72 Tage
Aktualisiert:
22 Tage
Anzeige melden
Ort
Praha 6
Der Standort ist ungefähr, wir kennen die genaue Adresse nicht.
Genauen Standort anfordern
Karte vergrößern
Bürgerliche Einrichtungen
ARCHA realitní kancelář Praha - Milan Černý
Milan Černý
E-Mail anzeigen
Telefon anzeigen
Verkäufer kontaktieren
ARCHA realitní kancelář Praha - Milan Černý
Milan Černý
E-Mail anzeigen
Telefon anzeigen
Verkäufer kontaktieren
Ähnliche Anzeigen
|
Ähnliche im Ausland
|
Verkauf
Wohnungen
Tschechien
Hauptstadt Prag
Prag
Breunau