Verkauf
Mieten
Blog
Über uns
+ Eigenschaft hinzufügen
Speisekarte
Angebotsliste
13
13
13
246 322 €
(2 968 € / m²)
Verkauf
3
1
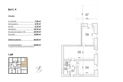
83 m²
Blanická, Postupice
Auf Karte anzeigen
Zu Favoriten hinzufügen
Aktie
schlafzimmer
3
wohnung
83 m²
badezimmer
1
aufzug
NEIN
parken
Ja
zustand
Andere
keller
Ja
terrasse
NEIN
Beschreibung
Übersetzen nach Deutsch
Moderní byt s historickým nádechem – Postupice u Benešova
V unikátním projektu v Postupicích u Benešova nabízíme moderní byt 3+kk o velikosti 83 m² v...
Vollständige Beschreibung anzeigen
Parameter
Ausstattung & Funktionen
Gärten
Parameter
Eigentum:
Persönlich
Zustand:
Andere
Energieintensität:
E – Unwirtschaftlich
Gebäudetyp:
Ziegel
Heizungsart:
floor, electric
Alle Parameter anzeigen
Alter des Angebots:
2Tage
Aktualisiert:
2Tage
Anzeige melden
Ortschaften
Blanická, Postupice
Die Standortangabe ist nur ungefähr, wir kennen die genaue Adresse nicht.
Bitte genaue Adresse anfordern
Karte vergrößern
Öffentliche Einrichtungen
Birdie reality s.r.o. - Century 21
Martina Veselská
E-Mail anzeigen
Telefonnummer anzeigen
Verkäufer kontaktieren
Birdie reality s.r.o. - Century 21
Martina Veselská
E-Mail anzeigen
Telefonnummer anzeigen
Verkäufer kontaktieren
Ähnliche Anzeigen
|
Ähnliches im Ausland
|
Verkauf
Wohnungen
Tschechien
Postupice