SUPA24
Sonstiges
75 800 €
(1 895 € / m²)
Verkauf
Atypisch
1
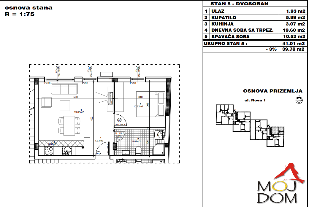
40 m²
Божидара Аџије

schlafzimmeratypical
wohnung40 m²
badezimmer1
aufzugNEIN
parkenNEIN
zustandAndere
kellerNEIN
terrasseNEIN

Beschreibung

Petrovaradin! Vaš mali raj čeka samo na Vas!
Ušuškan, komforan stan, skladnog rasporeda u zgradi koju gradi pouzdan investitor nalaze se u mirnom kraj...

Parameter

Parameter

Eigentum:
Andere
Zustand:
Andere
Gebäudetyp:
Andere
Heizungsart:
Gas
Ausrüstung:
Andere
Alter des Angebots: 414Tage
Aktualisiert: 413Tage

Ortschaften

Божидара Аџије
Die Standortangabe ist nur ungefähr, wir kennen die genaue Adresse nicht.

Öffentliche Einrichtungen

MOJ DOM - AGENCIJA ZA NEKRETNINE


Dragana Zorić

Ähnliche Anzeigen

Ähnliches im Ausland