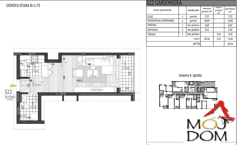
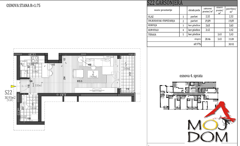
Nova Detelinara! Izgradnja stana visokog kvaliteta na fenomenalnoj lokaciji! Stan, strukturno odličnog rasporeda i veličine, nalazi se na jednoj od n...
Parameter
Parameter
Eigentum:Die Art des Eigentums bestimmt das rechtliche Verhältnis zum Eigentum – persönliches, genossenschaftliches oder staatliches/kommunales Eigentum.
Andere
Zustand:Der aktuelle Zustand der Immobilie im Hinblick auf die Sanierung – vor, nach oder während der Sanierung.