Verkauf
Miete
Blog
Über uns
+ Angebot hinzufügen
Menü
Angebotsauflistung
5
91 826 €
(3 166 € / m²)
Verkauf
1
1
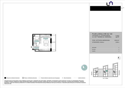
29 m²
Piotra Skargi, Katowice
Auf Karte anzeigen
Zu Favoriten
Teilen
schlafzimmer
1
fläche
29 m²
badezimmer
1
aufzug
Nein
parken
Nein
status
kellergeschoss
Nein
terrasse
Nein
Beschreibung
Übersetzen nach Deutsch
Nowoczesny superbudynek, złożony z trzech kaskadowych tarasowców z otwartym, miejskim parterem, wygodnymi apartamentami i balkonami pod centralnym ad...
Vollständige Beschreibung anzeigen
Parameter
Ausstattung & Eigenschaften
Internet
Parameter
Eigentum:
Persönlich
Heizungsart:
Zentralheizung ferngesteuert
Möbliert:
Sonstige
Angebotsalter:
436 Tage
Aktualisiert:
6 Tage
Anzeige melden
Ort
Piotra Skargi, Katowice
Der Standort ist ungefähr, wir kennen die genaue Adresse nicht.
Genauen Standort anfordern
Karte vergrößern
Bürgerliche Einrichtungen
VERITAS
Leszek Czura
E-Mail anzeigen
Telefon anzeigen
Verkäufer kontaktieren
VERITAS
Leszek Czura
E-Mail anzeigen
Telefon anzeigen
Verkäufer kontaktieren
Ähnliche Anzeigen
|
Ähnliche im Ausland
|
Verkauf
Wohnungen
Polen