Verkauf
Mieten
Blog
Über uns
+ Eigenschaft hinzufügen
Speisekarte
Angebotsliste
13
13
13
110 031 €
(2 445 € / m²)
Verkauf
2
1
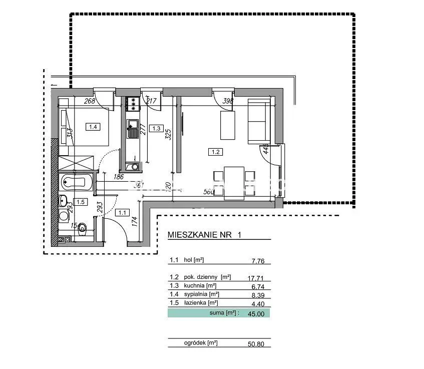
45 m²
Auf Karte anzeigen
Zu Favoriten hinzufügen
Aktie
schlafzimmer
2
wohnung
45 m²
badezimmer
1
aufzug
NEIN
parken
NEIN
zustand
keller
NEIN
terrasse
NEIN
Beschreibung
Übersetzen nach Deutsch
NOWA INWESTYCJA DEWELOPERSKA - GOTOWA DO ZAMIESZKANIA! ATRAKCYJNE CENY - FUNKCJONALNE MIESZKANIA W SPOKOJNEJ OKOLICY Oferujemy: Funkcjonalne układy m...
Vollständige Beschreibung anzeigen
Parameter
Generiert aus KI
Sicht
Boden
Holzboden
Hohe decken
Natürliches licht
Nach der rekonstruktion
Parameter
Eigentum:
Persönlich
Gebäudetyp:
Andere
Heizungsart:
Andere
Ausrüstung:
Andere
Alter des Angebots:
78Tage
Aktualisiert:
60Tage
Anzeige melden
Ortschaften
Die Standortangabe ist nur ungefähr, wir kennen die genaue Adresse nicht.
Bitte genaue Adresse anfordern
Karte vergrößern
Öffentliche Einrichtungen
BRACIA SADURSCY
Arkadiusz Zemła
E-Mail anzeigen
Telefonnummer anzeigen
Verkäufer kontaktieren
BRACIA SADURSCY
Arkadiusz Zemła
E-Mail anzeigen
Telefonnummer anzeigen
Verkäufer kontaktieren
Ähnliche Anzeigen
|
Ähnliches im Ausland
|
Verkauf
Wohnungen
Polen