Verkauf
Mieten
Blog
Über uns
+ Eigenschaft hinzufügen
Speisekarte
Angebotsliste
5
203 070 €
(3 982 € / m²)
Verkauf
3
1
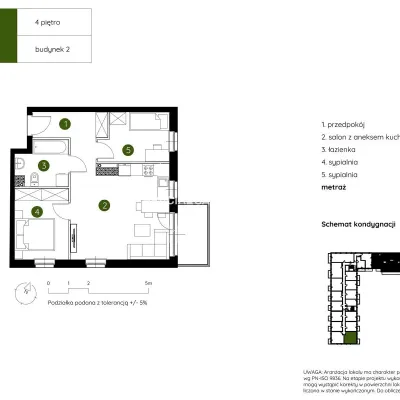
51 m²
Auf Karte anzeigen
Zu Favoriten hinzufügen
Aktie
schlafzimmer
3
wohnung
51 m²
badezimmer
1
aufzug
NEIN
parken
NEIN
zustand
keller
NEIN
terrasse
NEIN
Beschreibung
Übersetzen nach Deutsch
Z ogromną przyjemnością przedstawiamy Państwu ofertę mieszkania na sprzedaż w malowniczym rejonie Doliny Prądnika, na północy Krakowa, blisko granicy...
Vollständige Beschreibung anzeigen
Parameter
Ausstattung & Funktionen
Internet
Parameter
Eigentum:
Andere
Gebäudetyp:
Andere
Heizungsart:
Andere
Ausrüstung:
Andere
Alter des Angebots:
80Tage
Aktualisiert:
62Tage
Anzeige melden
Ortschaften
Die Standortangabe ist nur ungefähr, wir kennen die genaue Adresse nicht.
Bitte genaue Adresse anfordern
Karte vergrößern
Öffentliche Einrichtungen
BRACIA SADURSCY
Patrycja Rubinkiewicz
E-Mail anzeigen
Telefonnummer anzeigen
Verkäufer kontaktieren
BRACIA SADURSCY
Patrycja Rubinkiewicz
E-Mail anzeigen
Telefonnummer anzeigen
Verkäufer kontaktieren
Ähnliche Anzeigen
|
Ähnliches im Ausland
|
Verkauf
Wohnungen
Polen