Verkauf
Miete
Blog
Über uns
+ Angebot hinzufügen
Menü
Angebotsauflistung
4
4
164 343 €
(2 134 € / m²)
Verkauf
3
1
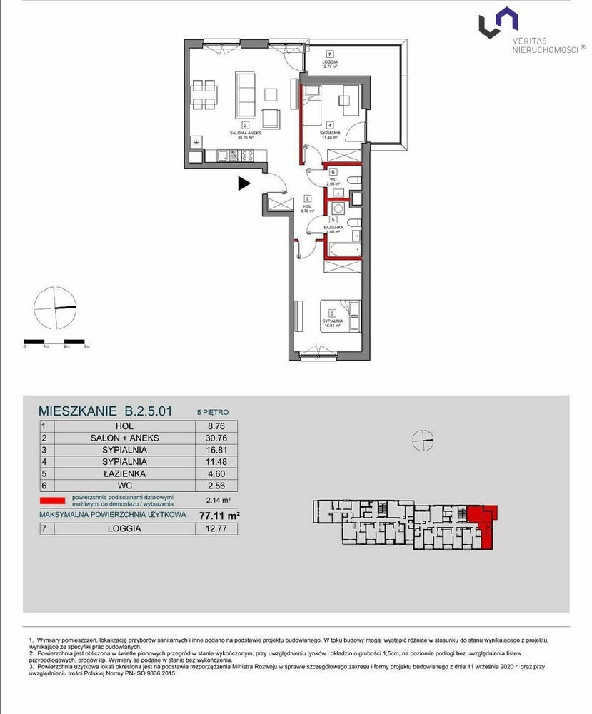
77 m²
Słoneczna, Katowice
Auf Karte anzeigen
Zu Favoriten
Teilen
schlafzimmer
3
fläche
77 m²
badezimmer
1
aufzug
Nein
parken
Nein
status
kellergeschoss
Nein
terrasse
Nein
Beschreibung
Übersetzen nach Deutsch
Termin oddania 01.04.2026 Inwestycja zrealizowana zostanie dwuetapowo. W pierwszej kolejności powstaną budynki 15-kondygnacyjne mieszkalne D, E i F, ...
Vollständige Beschreibung anzeigen
Parameter
Ausstattung & Eigenschaften
Internet
Parameter
Eigentum:
Sonstige
Gebäudetyp:
Sonstige
Heizungsart:
Zentralheizung ferngesteuert
Möbliert:
Sonstige
Angebotsalter:
624 Tage
Aktualisiert:
49 Tage
Anzeige melden
Ort
Słoneczna, Katowice
Der Standort ist ungefähr, wir kennen die genaue Adresse nicht.
Genauen Standort anfordern
Karte vergrößern
Bürgerliche Einrichtungen
VERITAS
Leszek Czura
E-Mail anzeigen
Telefon anzeigen
Verkäufer kontaktieren
VERITAS
Leszek Czura
E-Mail anzeigen
Telefon anzeigen
Verkäufer kontaktieren
Ähnliche Anzeigen
|
Ähnliche im Ausland
|
Verkauf
Wohnungen
Polen