Verkauf
Miete
Blog
Über uns
+ Angebot hinzufügen
Menü
Angebotsauflistung
17
17
17
25 000 €
(227 € / m²)
Verkauf
2
2+
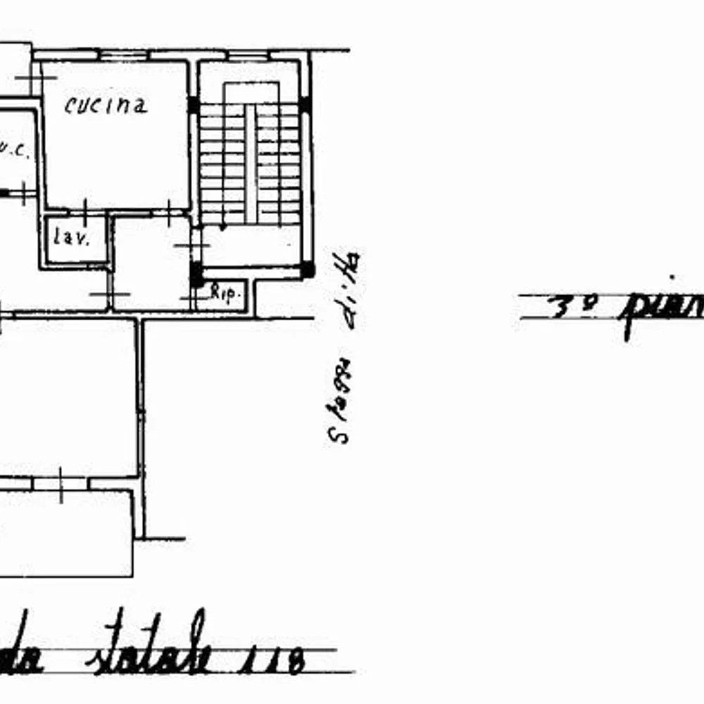
110 m²
Via Nazionale, Alessandria della Rocca
Auf Karte anzeigen
Zu Favoriten
Teilen
schlafzimmer
1
fläche
110 m²
badezimmer
2+
aufzug
Nein
parken
Nein
status
kellergeschoss
Nein
terrasse
Nein
Beschreibung
Übersetzen nach Deutsch
Apt located in Via Nazionale, Alessandria della Rocca which covers an area of about 110 square meters on the third floor. Consisting of three bedrooms...
Vollständige Beschreibung anzeigen
Parameter
Parameter
Eigentum:
Persönlich
Energieeffizienz:
G - Außerordentlich unwirtschaftlich
Angebotsalter:
525 Tage
Aktualisiert:
525 Tage
Anzeige melden
Ort
Via Nazionale, Alessandria della Rocca
Der Standort ist ungefähr, wir kennen die genaue Adresse nicht.
Genauen Standort anfordern
Karte vergrößern
Bürgerliche Einrichtungen
My House Agenzia Immobiliare
My House Agenzia Immobiliare
E-Mail anzeigen
Telefon anzeigen
Verkäufer kontaktieren
My House Agenzia Immobiliare
My House Agenzia Immobiliare
E-Mail anzeigen
Telefon anzeigen
Verkäufer kontaktieren
Ähnliche Anzeigen
|
Ähnliche im Ausland
|
Sale
Apartments
Italien