Verkauf
Mieten
Blog
Über uns
+ Eigenschaft hinzufügen
Speisekarte
Angebotsliste
209 022 €
(2 200 € / m²)
Verkauf
Atypisch
1
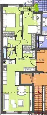
95 m²
ж.к. Надежда 1
Auf Karte anzeigen
Zu Favoriten hinzufügen
Aktie
schlafzimmer
atypical
wohnung
95 m²
badezimmer
1
aufzug
NEIN
parken
NEIN
zustand
Andere
keller
NEIN
terrasse
NEIN
Beschreibung
Übersetzen nach Deutsch
БЕЗ КОМИСИОННА ОТ КУПУВАЧА !!! ЦЕНИ НА ИНВЕСТИТОР!!! ТОП МЯСТО!!! Ново строителство на бутикова сграда с модерна визия и съвременна архитектура на ме...
Vollständige Beschreibung anzeigen
Parameter
Parameter
Eigentum:
Andere
Zustand:
Andere
Gebäudetyp:
Andere
Heizungsart:
Andere
Ausrüstung:
Andere
Alter des Angebots:
4Tage
Aktualisiert:
4Tage
Anzeige melden
Ortschaften
ж.к. Надежда 1
Die Standortangabe ist nur ungefähr, wir kennen die genaue Adresse nicht.
Bitte genaue Adresse anfordern
Karte vergrößern
Öffentliche Einrichtungen
АГЕНЦИЯ СКАЛА ДИ-НЕДВИЖИМИ ИМОТИ ЕООД
Telefonnummer anzeigen
Verkäufer kontaktieren
АГЕНЦИЯ СКАЛА ДИ-НЕДВИЖИМИ ИМОТИ ЕООД
Telefonnummer anzeigen
Verkäufer kontaktieren
Ähnliche Anzeigen
|
Ähnliches im Ausland
|
Verkauf
Wohnungen
Bulgarien