Verkauf
Mieten
Blog
Über uns
+ Eigenschaft hinzufügen
Protokoll
Speisekarte
GL
+0 km
Alle
Zimmer und Badezimmer
Alle
Filter
Andere Filter
Karte
Suche speichern
Verkauf Wohnungen
10000+ Ergebnisse
Aus dem Neuesten
Klinge
Fliese
211 000 €
Verkauf
2
1
45 m²
Chemin de l'Habitation Vidal, Remire-Montjoly
Situé dans la partie sud du territoire de la commune de RémireMontjoly, , l'écoquartier Georges Othily jouxte de vastes espaces naturels. Il intègre les caractéristiques du développement durable : l…
11
254 943 €
Verkauf
Atypisch
2+
200 m²
Soi Hadurin 8, ตําบลเชิงทะเล
Boden
Two bedroom foreigner freehold for sale at The Origin BangtaoMixed-use condominium for sale with 400 meters to Bangtao beach.In the heart of Bangtao, at the epicentre of the luxurious. Designed to co…
9
183 159 €
Verkauf
6+
2+
200 m²
Opp
Schwimmbad
Terrasse
Holzboden
Natürliches licht
Sicht
Offener wohnbereich
Separate küche
Duschkabine
Küchengeräte
+ 5 Etiketten
5
1 456 600 €
Verkauf
6+
1
372 m²
Chemin de l'Habitation Vidal, Remire-Montjoly
Terrasse
Vente en bloc de 4 maisons en état futur d'achèvement Le programme se compose de 4 villas T5 en R+1, jumelées par le garage. Chaque villa bénéficie d'une surface habitable de 93 m2, d'une terrasse, d…
6
109 900 €
Verkauf
1
1
37 m²
Rue Sainte-Barbe, Munster
Natürliches licht
Sicht
Idéal pour un premier achat ou un pied-à-terre ! Votre agence l'Adresse Strasbourg vous propose en exclusivité ce charmant T1 en duplex de 37m2 habitables (55m2 au sol), avec une mezzanine cosy amén…
5
147 000 €
Verkauf
1
1
33 m²
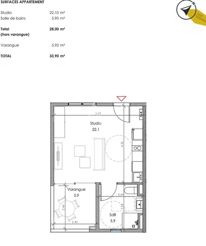
Remire-Montjoly
Nichée dans un écrin de verdure La Résidence Harmonie de 6 bâtiments composés de T1, T1 bis, T2 et T3 ,83 places de parking dont 2 PMR, espaces verts, pergola, piscine, des locaux vélos et poussette…
8
161 553 €
Verkauf
Atypisch
1
45 m²
Phuket Grand Ville, ตําบลเชิงทะเล
Geeignet für haustiere
Condominium for sale in Layan🏢Project HighlightsPrime Location: Perfectly positioned in the heart of Laguna, Bangtao, overlooking a tranquil lake🏢Flexible Ownership Options: Choose between Freehold o…
14
310 000 €
Verkauf
Atypisch
2+
140 m²
Avenida dos Pescadores, Póvoa de Varzim
Möbliert
Excellent apartment T3;First line of the sea;Kitchen furnished and equipped;Electric blinds;Central heating;Large areas;Balcony;Fabulous sun exposure;Parking space;Near all kinds of commerce and serv…
9
249 000 €
Verkauf
5
1
123 m²
Chemin de la Faisane, Nîmes
Klimaanlage
EXCLUSIVITE ! NIMES / ECUSSON - COEUR DE VILLE / PLACE BELLECROIX - Situé au 1er étage sans ascenseur d'un bel immeuble ancien, spacieux appartement de type P5 d'une surface habitable de 123.33m2, co…
11
150 282 €
Verkauf
Atypisch
1
51 m²
Soi Hadurin 8, ตําบลเชิงทะเล
Geeignet für haustiere
🏢 Luxury Condominium for Sale – Cherngtalay, PhuketExperience refined living in the heart of Cherngtalay. This low-density luxury condominium offers just 48 exclusive units, blending Indochine-inspir…
31
395 000 €
Verkauf
Atypisch
2+
150 m²
Travessa da Rua Cândido de Oliveira, Braga
Natürliches licht
Boden
Offener wohnbereich
Separate küche
Duschkabine
Sicht
155 951 €
Verkauf
2
1
122 m²
شارع البحر
Aufzug
Gärten
Are you looking for a ready project, right in the centre of Hurghada and directly on its own private Sandy Beach with quality facilities? Then look no fuether than SCANDIC Resort. Scandic Resort is…
Diese Auswahl speichern
×
Und wir werden Sie umgehend über neue Angebote informieren.
Stellen Sie einen Wachhund ein
Mehr anzeigen
Vorherige
1
2
3
4
...
834
Andere
Verkauf
Wohnungen