بيع
تأجير
مدونة
عنا
+ إضافة عرض
قائمة
عرض العروض
10
10
10
3 317 US$
(57 US$ / م²)
تأجير
١
1
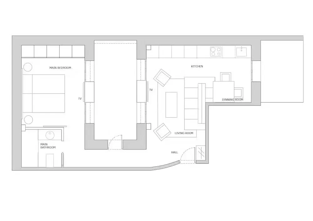
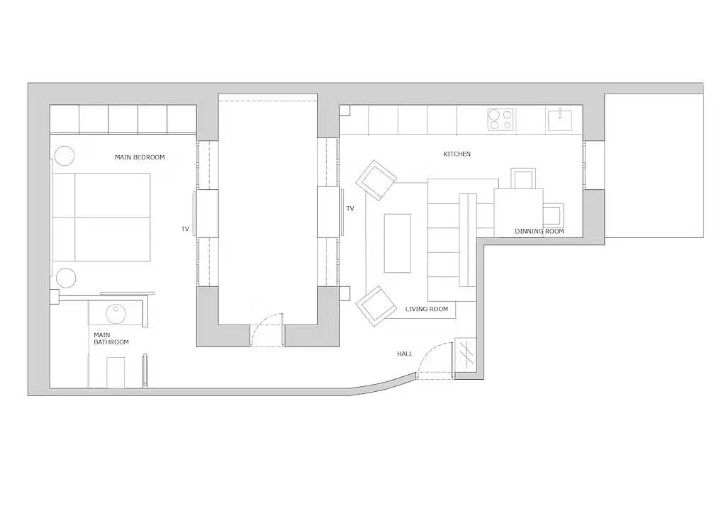
58 م²
Calle del Conde de Peñalver, Madrid
عرض على الخريطة
إلى المفضلة
مشاركة
غرفة نوم
1
منطقة
58 م²
حمام
1
مصعد
لا
موقف السيارات
لا
حالة
أخرى
قبو
لا
تراس
لا
الوصف
ترجم إلى الإنجليزية
For more details, please visit https://housinganywhere.com/room/ut1534954/es/Madrid/calle-del-conde-de-pe-alver?utm_medium=affiliate&utm_source=list_g...
عرض الوصف الكامل
البارامترات
المعدات والخصائص
التكييف
البارامترات
الملكية:
أخرى
حالة:
أخرى
نوع المبنى:
أخرى
نوع التدفئة:
أخرى
مفروش:
مُجَهَّز
عمر العرض:
364 أيام
تم التحديث:
3 أيام
الإبلاغ عن الإعلان
موقع
Calle del Conde de Peñalver, Madrid
الموقع تقريبي، لا نعرف العنوان الدقيق.
طلب العنوان الدقيق
تكبير الخريطة
المرافق المدنية
HousingAnywhere
عرض الهاتف
تواصل مع البائع
HousingAnywhere
عرض الهاتف
تواصل مع البائع
إعلانات مشابهة
|
عروض مشابهة في الخارج
|
إيجار
شقق
إسبانيا