أُوكَازيُون
إيجار
مدونة
معلومات عنا
+ إضافة خاصية
قائمة طعام
قائمة العروض
17
17
17
136 367 US$
(5 051 US$ / م²)
أُوكَازيُون
1
1
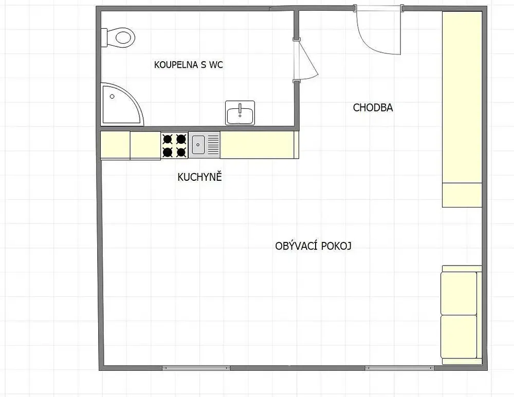
27 م²
عرض على الخريطة
أضف إلى المفضلة
يشارك
غرفة
1
مستوي
27 م²
الحمامات
1
يرفع
لا
موقف سيارات
لا
ولاية
آخر
الطابق السفلي
لا
شرفة
لا
وصف
ترجمة إلى إنجليزي
Nabízíme k prodeji garsoniéru o velikosti 26,9 m2 v cihlovém bytovém domě v obci Štěnovice s vlastním parkovacím stáním přímo před domem.
Bytová jedno...
عرض الوصف الكامل
حدود
المعدات والميزات
إنترنت
تم إنشاؤه بواسطة الذكاء الاصطناعي
أجهزة المطبخ
كابينة الاستحمام
سخان الماء
نوع المبنى
حدود
ملكية:
شخصي
ولاية:
آخر
كثافة الطاقة:
ج - اقتصادي
نوع المبنى:
الطوب
نوع التدفئة:
الغاز
عرض جميع المعلمات
عمر العرض:
53أيام
تم التحديث:
52أيام
الإبلاغ عن إعلان
المناطق المحلية
الموقع تقريبي، ولا نعرف العنوان الدقيق.
اطلب العنوان الدقيق
تكبير الخريطة
المرافق المدنية
REALITY NIL s.r.o.
Vladislav Štrbáň
عرض البريد الإلكتروني
أظهر رقم الهاتف
تواصل مع البائع
REALITY NIL s.r.o.
Vladislav Štrbáň
عرض البريد الإلكتروني
أظهر رقم الهاتف
تواصل مع البائع
إعلانات مشابهة
|
على غرار ذلك في الخارج
|
بيع
شقق
التشيك