أُوكَازيُون
إيجار
مدونة
معلومات عنا
+ إضافة خاصية
قائمة طعام
قائمة العروض
16
16
16
143 916 US$
(4 797 US$ / م²)
أُوكَازيُون
1
1
30 م²
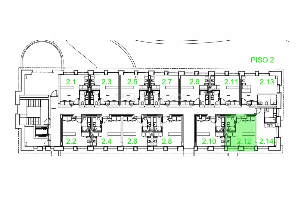
Rua da Indústria, Covilhã
عرض على الخريطة
أضف إلى المفضلة
يشارك
غرفة
1
مستوي
30 م²
الحمامات
1
يرفع
لا
موقف سيارات
لا
ولاية
آخر
الطابق السفلي
لا
شرفة
لا
وصف
ترجمة إلى إنجليزي
Identificação do imóvel: ZMPT579060
Empreendimento terminado
Escrituras dos apartamentos a partir de dezembro 2025
Este novo edifício a 700m da UBI -...
عرض الوصف الكامل
حدود
حدود
ملكية:
آخر
ولاية:
آخر
نوع المبنى:
آخر
نوع التدفئة:
آخر
معدات:
آخر
عمر العرض:
198أيام
تم التحديث:
1أيام
الإبلاغ عن إعلان
المناطق المحلية
Rua da Indústria, Covilhã
الموقع تقريبي، ولا نعرف العنوان الدقيق.
اطلب العنوان الدقيق
تكبير الخريطة
المرافق المدنية
ZOME Porto - CEC
أظهر رقم الهاتف
تواصل مع البائع
ZOME Porto - CEC
أظهر رقم الهاتف
تواصل مع البائع
إعلانات مشابهة
|
على غرار ذلك في الخارج
|
بيع
شقق
البرتغال