SUPA24
أخرى
أخرى
أخرى
أخرى
أخرى
450 989 US$
أُوكَازيُون
غير نمطي
1
Rua da Padaria, Aljezur

غرفةatypical
الحمامات1
يرفعلا
موقف سياراتلا
ولايةآخر
الطابق السفليلا
شرفةلا

وصف

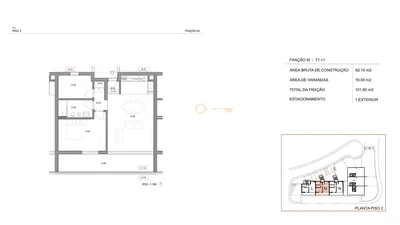
We present this charming 1+1-bedroom apartment, located in a contemporary residential building in the final stage of construction, nestled in the pict...

حدود

حدود

ملكية:
آخر
ولاية:
آخر
نوع المبنى:
آخر
معدات:
آخر
عمر العرض: 28أيام
تم التحديث: 26أيام

المناطق المحلية

Rua da Padaria, Aljezur
الموقع تقريبي، ولا نعرف العنوان الدقيق.

المرافق المدنية

Your Overseas Home


Your Overseas Home

إعلانات مشابهة

على غرار ذلك في الخارج