بيع
تأجير
مدونة
عنا
+ إضافة عرض
قائمة
عرض العروض
640 099 US$
(4 849 US$ / م²)
بيع
٣
2+
132 م²
Corroios, Seixal
عرض على الخريطة
إلى المفضلة
مشاركة
غرفة نوم
3
منطقة
132 م²
حمامات
2+
مصعد
لا
موقف السيارات
لا
حالة
أخرى
قبو
لا
تراس
لا
الوصف
ترجم إلى الإنجليزية
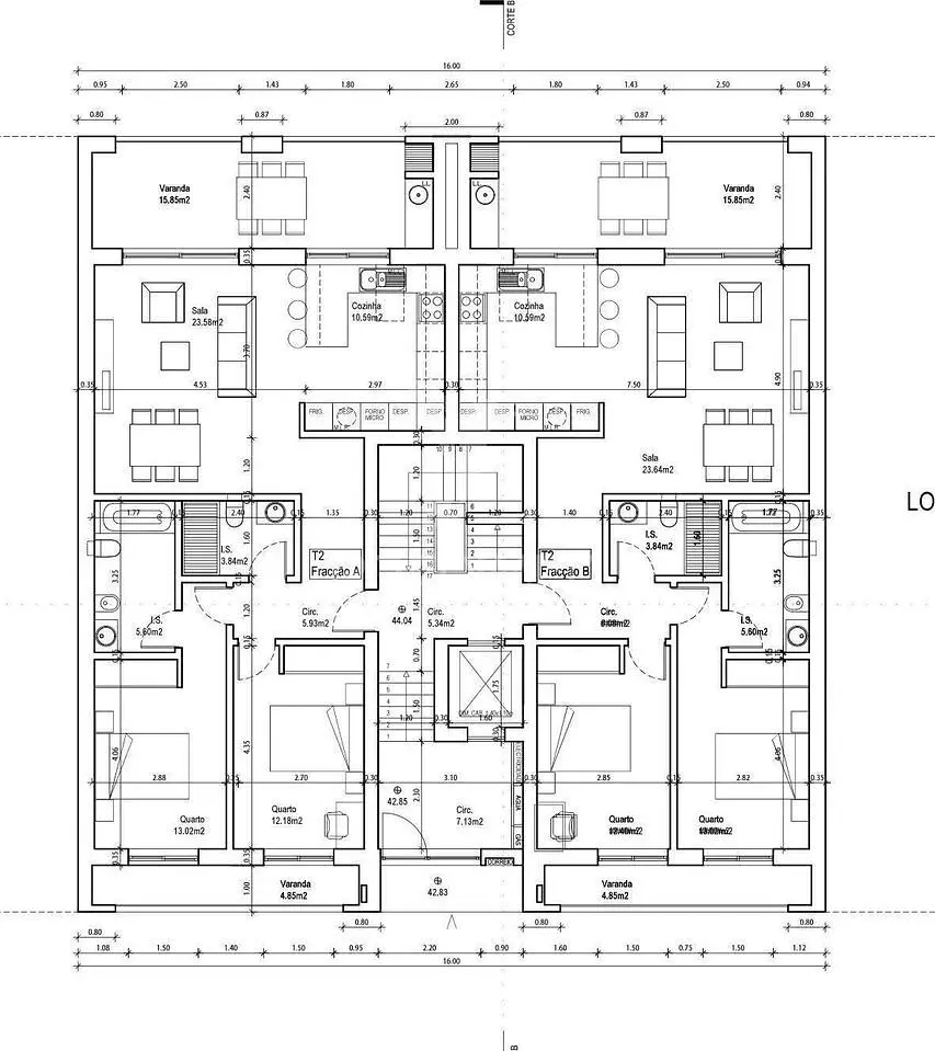
Description of the propertyWe present this modern Duplex T3 under construction located in Vale de Milhaços, Corroios, a quiet and residential area, pe...
عرض الوصف الكامل
البارامترات
البارامترات
الملكية:
أخرى
حالة:
أخرى
نوع المبنى:
أخرى
نوع التدفئة:
أخرى
مفروش:
أخرى
عمر العرض:
1 أيام
تم التحديث:
1 أيام
الإبلاغ عن الإعلان
موقع
Corroios, Seixal
الموقع تقريبي، لا نعرف العنوان الدقيق.
طلب العنوان الدقيق
تكبير الخريطة
المرافق المدنية
Espacos WEB
Predimed
عرض البريد الإلكتروني
عرض الهاتف
تواصل مع البائع
Espacos WEB
Predimed
عرض البريد الإلكتروني
عرض الهاتف
تواصل مع البائع
إعلانات مشابهة
|
عروض مشابهة في الخارج
|
بيع
شقق
البرتغال