أُوكَازيُون
إيجار
مدونة
معلومات عنا
+ إضافة خاصية
قائمة طعام
قائمة العروض
7
7
7
828 079 US$
(9 742 US$ / م²)
أُوكَازيُون
4
1
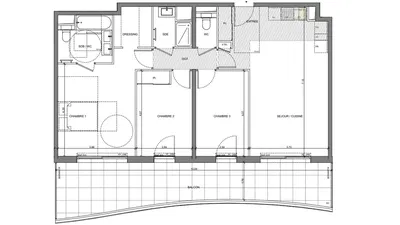
85 م²
Rue Layet Bérenger, Saint-Laurent-du-Var
عرض على الخريطة
أضف إلى المفضلة
يشارك
غرفة
4
مستوي
85 م²
الحمامات
1
يرفع
نعم
موقف سيارات
لا
ولاية
آخر
الطابق السفلي
لا
شرفة
لا
وصف
ترجمة إلى إنجليزي
iad France - Sarah Rozière (06 99 86 19 42) vous propose : Appartement T4 avec balcon à Saint-Laurent-du-Var.Située chemin des Paluds à Saint-Laurent-...
عرض الوصف الكامل
حدود
المعدات والميزات
يرفع
حدود
ملكية:
آخر
ولاية:
آخر
نوع المبنى:
آخر
نوع التدفئة:
آخر
معدات:
آخر
عرض جميع المعلمات
عمر العرض:
45أيام
تم التحديث:
2أيام
الإبلاغ عن إعلان
المناطق المحلية
Rue Layet Bérenger, Saint-Laurent-du-Var
الموقع تقريبي، ولا نعرف العنوان الدقيق.
اطلب العنوان الدقيق
تكبير الخريطة
المرافق المدنية
IAD France
أظهر رقم الهاتف
تواصل مع البائع
IAD France
أظهر رقم الهاتف
تواصل مع البائع
إعلانات مشابهة
|
على غرار ذلك في الخارج
|
بيع
شقق
فرنسا