SUPA24
أخرى
أخرى
أخرى
أخرى
أخرى
1 037 496 US$
(1 377 US$ / قدم مربع)
أُوكَازيُون
2
1
753.47 قدم مربع
Tunnel André Liautaud, Nice

غرفة2
مستوي753.47 قدم مربع
الحمامات1
يرفعلا
موقف سياراتلا
ولايةآخر
الطابق السفليلا
شرفةلا

وصف

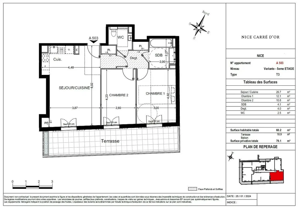
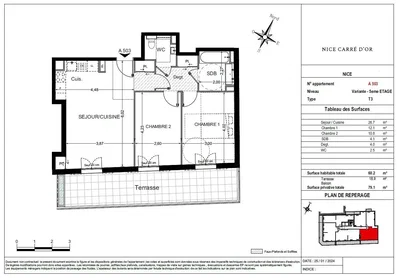
Nice Carre d'Or, Alpes-Maritimes LAST UNIT AVAILABLE. Ideal investment near PLACE MASSENA in the heart of the beautiful Nice Bourgeois style property...

حدود

حدود

ملكية:
آخر
ولاية:
آخر
نوع المبنى:
آخر
نوع التدفئة:
آخر
معدات:
آخر
عمر العرض: 2أيام
تم التحديث: 2أيام

المناطق المحلية

Tunnel André Liautaud, Nice
الموقع تقريبي، ولا نعرف العنوان الدقيق.

المرافق المدنية

Your Overseas Home


Your Overseas Home

إعلانات مشابهة

على غرار ذلك في الخارج