أُوكَازيُون
إيجار
مدونة
معلومات عنا
+ إضافة خاصية
قائمة طعام
قائمة العروض
410 875 US$
(6 522 US$ / م²)
أُوكَازيُون
3
1
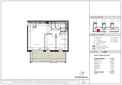
63 م²
عرض على الخريطة
أضف إلى المفضلة
يشارك
غرفة
3
مستوي
63 م²
الحمامات
1
يرفع
نعم
موقف سيارات
لا
ولاية
آخر
الطابق السفلي
لا
شرفة
نعم
وصف
ترجمة إلى إنجليزي
ANGERS emplacement privilégié quartier Ney-Pasteur, dans un élégant ensemble résidentiel à 5 mn de l'hyper-centre et pourtant au calme d'un environne...
عرض الوصف الكامل
حدود
المعدات والميزات
يرفع
تم إنشاؤه بواسطة الذكاء الاصطناعي
شرفة
مرحاض منفصل
حدود
ملكية:
آخر
ولاية:
آخر
نوع المبنى:
آخر
نوع التدفئة:
آخر
معدات:
آخر
عرض جميع المعلمات
عمر العرض:
24أيام
تم التحديث:
24أيام
الإبلاغ عن إعلان
المناطق المحلية
الموقع تقريبي، ولا نعرف العنوان الدقيق.
اطلب العنوان الدقيق
تكبير الخريطة
المرافق المدنية
l'Adresse Anjou-Maine - l'Adresse Angers - Place du lycée
أظهر رقم الهاتف
تواصل مع البائع
l'Adresse Anjou-Maine - l'Adresse Angers - Place du lycée
أظهر رقم الهاتف
تواصل مع البائع
إعلانات مشابهة
|
على غرار ذلك في الخارج
|
بيع
شقق
فرنسا