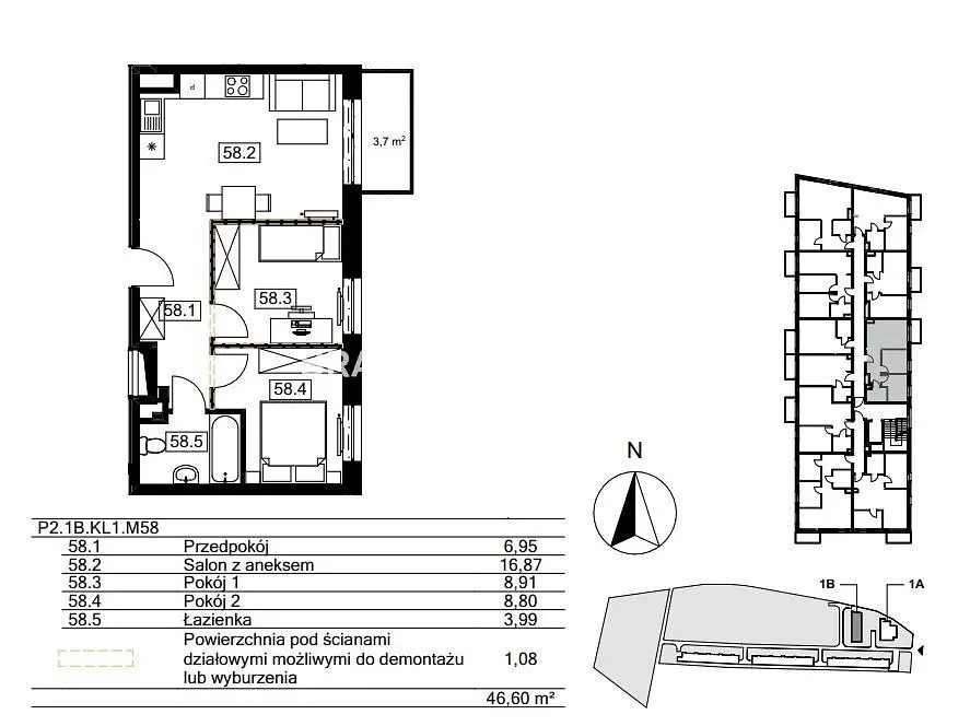
ZŁOCIEŃ - NOWOCZESNE OSIEDLE MIESZKANIOWE. Prezentujemy nowoczesne osiedle zlokalizowane w południowo-wschodniej części miasta. W III etapie powstani...
حدود
تم إنشاؤه بواسطة الذكاء الاصطناعي
يتم إنشاء العلامات تلقائيًا بواسطة الذكاء الاصطناعي بناءً على الصور وأوصاف العقارات.
شرفةأرضية
حدود
ملكية:يحدد نوع الملكية العلاقة القانونية بالعقار - شخصية، أو تعاونية، أو تابعة للدولة/البلدية.