SUPA24
أخرى
أخرى
أخرى
أخرى
أخرى
116 683 US$
(361 US$ / قدم مربع)
أُوكَازيُون
1
1
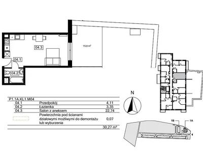
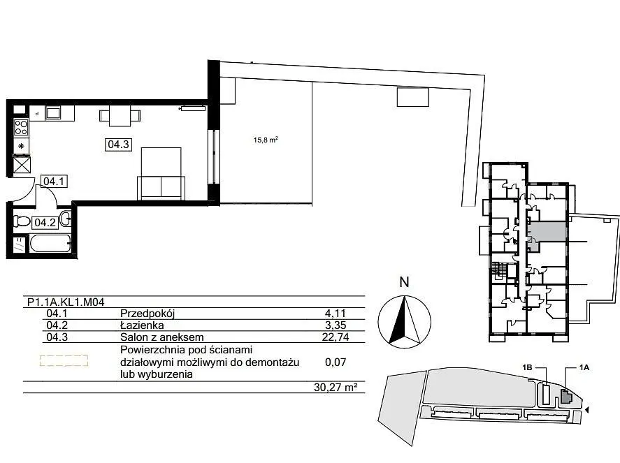
322.92 قدم مربع
Agatowa, Kraków

غرفة1
مستوي322.92 قدم مربع
الحمامات1
يرفعلا
موقف سياراتلا
ولاية
الطابق السفليلا
شرفةلا

وصف

ZŁOCIEŃ - NOWOCZESNE OSIEDLE MIESZKANIOWE. Prezentujemy nowoczesne osiedle zlokalizowane w południowo-wschodniej części miasta. W III etapie powstani...

حدود

تم إنشاؤه بواسطة الذكاء الاصطناعي

شرفةأرضية

حدود

ملكية:
شخصي
نوع المبنى:
آخر
نوع التدفئة:
آخر
معدات:
آخر
أرضية:
1. طابق 4
عمر العرض: 5أيام
تم التحديث: 5أيام

المناطق المحلية

Agatowa, Kraków
الموقع تقريبي، ولا نعرف العنوان الدقيق.

المرافق المدنية

BRACIA SADURSCY


Marek Popiela

إعلانات مشابهة

على غرار ذلك في الخارج