بيع
تأجير
مدونة
عنا
+ إضافة عرض
قائمة
عرض العروض
25
25
25
305 504 US$
(5 764 US$ / م²)
بيع
٢
1
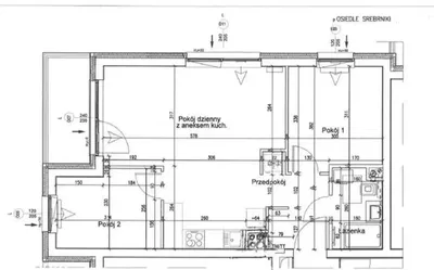
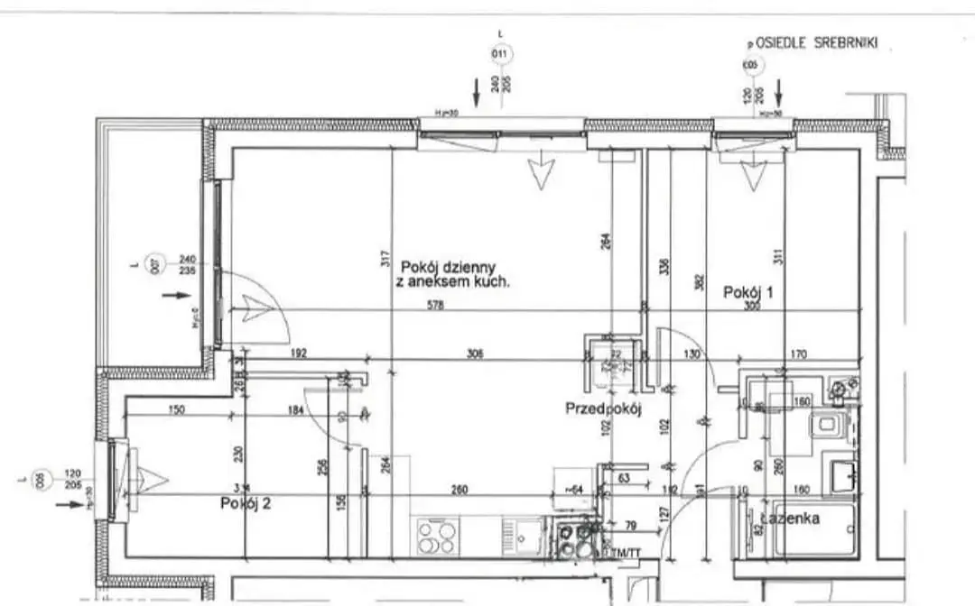
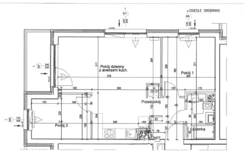
53 م²
Magellana, Gdańsk
عرض على الخريطة
إلى المفضلة
مشاركة
غرفة نوم
2
منطقة
53 م²
حمام
1
مصعد
لا
موقف السيارات
لا
حالة
قبو
لا
تراس
لا
الوصف
ترجم إلى الإنجليزية
Szukasz miejsca łączącego miejski komfort z naturalnym otoczeniem? To 2-pokojowe mieszkanie zlokalizowane w sercu Gdańska Wrzeszcza, tuż przy Parku Ja...
عرض الوصف الكامل
البارامترات
البارامترات
الملكية:
شخصي
نوع التدفئة:
أخرى
مفروش:
أخرى
عمر العرض:
196 أيام
تم التحديث:
2 أيام
الإبلاغ عن الإعلان
موقع
Magellana, Gdańsk
الموقع تقريبي، لا نعرف العنوان الدقيق.
طلب العنوان الدقيق
تكبير الخريطة
المرافق المدنية
MAGIC HOUSE BIURO NIERUCHOMOŚCI MAGIC HOUSE BIURO NIERUCHOMOŚCI
Maciej Kozak
عرض البريد الإلكتروني
عرض الهاتف
تواصل مع البائع
MAGIC HOUSE BIURO NIERUCHOMOŚCI MAGIC HOUSE BIURO NIERUCHOMOŚCI
Maciej Kozak
عرض البريد الإلكتروني
عرض الهاتف
تواصل مع البائع
إعلانات مشابهة
|
عروض مشابهة في الخارج
|
بيع
شقق
بولندا