SUPA24
غرفة معيشة
غرفة معيشة
غرفة معيشة
غرفة معيشة
غرفة معيشة
149 210 US$
(193 US$ / قدم مربع)
أُوكَازيُون
غير نمطي
1
775 قدم مربع
Бързарица, София

غرفةatypical
مستوي775 قدم مربع
الحمامات1
يرفعلا
موقف سياراتلا
ولايةآخر
الطابق السفليلا
شرفةلا

وصف

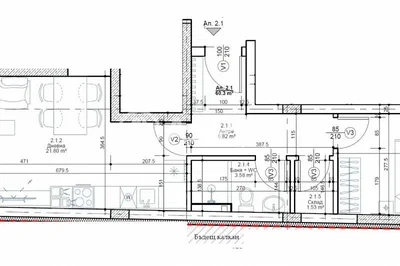
Двустаен апартамент на етаж втори с РЗП-71,55м2, ЗП-60,30м2 и разпределение: антре, дневна с кухненски бокс и трапезария-21,80м2, спалня-11,93м2, баня...

حدود

حدود

ملكية:
آخر
ولاية:
آخر
نوع المبنى:
آخر
نوع التدفئة:
آخر
معدات:
آخر
عمر العرض: 4أيام
تم التحديث: 4أيام

المناطق المحلية

Бързарица, София
الموقع تقريبي، ولا نعرف العنوان الدقيق.

المرافق المدنية

АДРЕС НЕДВИЖИМИ ИМОТИ


إعلانات مشابهة

على غرار ذلك في الخارج