بيع
تأجير
مدونة
عنا
+ إضافة عرض
قائمة
عرض العروض
5
493 464 US$
(2 031 US$ / م²)
بيع
غير نمطي
1
243 م²
Център/Centar, София
عرض على الخريطة
إلى المفضلة
مشاركة
غرفة نوم
atypical
منطقة
243 م²
حمام
1
مصعد
لا
موقف السيارات
لا
حالة
أخرى
قبو
لا
تراس
لا
الوصف
ترجم إلى الإنجليزية
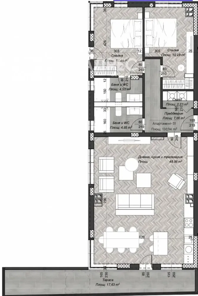
Тристаен апартамент на две изложения - изток/запад, състоящ се от антре, просторна дневна с кухненски бокс и трапезария, две спални, с възможност за о...
عرض الوصف الكامل
البارامترات
البارامترات
الملكية:
أخرى
حالة:
أخرى
نوع المبنى:
أخرى
نوع التدفئة:
أخرى
مفروش:
أخرى
عمر العرض:
72 أيام
تم التحديث:
12 أيام
الإبلاغ عن الإعلان
موقع
Център/Centar, София
الموقع تقريبي، لا نعرف العنوان الدقيق.
طلب العنوان الدقيق
تكبير الخريطة
المرافق المدنية
АДРЕС НЕДВИЖИМИ ИМОТИ
عرض الهاتف
تواصل مع البائع
АДРЕС НЕДВИЖИМИ ИМОТИ
عرض الهاتف
تواصل مع البائع
إعلانات مشابهة
|
عروض مشابهة في الخارج
|
بيع
شقق
بلغاريا