Satış
Kiralama
Blog
Hakkımızda
+ Özellik ekle
Menü
Teklifler listesi
41 750 €
(1 546 € / m²)
Satış
5
1
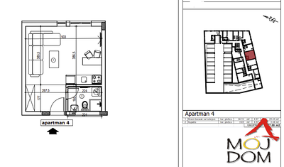
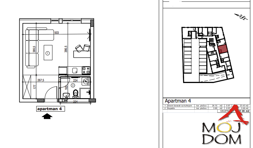
27 m²
Haritada göster
Favorilere ekle
Paylaşmak
yatak odası
5
düz
27 m²
banyolar
1
kaldırmak
HAYIR
otopark
HAYIR
durum
Diğer
bodrum
HAYIR
teras
HAYIR
Tanım
Çevir İngilizce
Petrovaradin!
Apartman u suterenu zgrade. Kupovina samo za kes.
Prodajemo stan na urbanoj ali izuzetno mirnoj lokaciji, u zgradi koju gradi pouzdan...
Tam açıklamayı göster
Parametreler
Parametreler
Mülkiyet:
Diğer
Durum:
Diğer
bina tipi:
Diğer
Isıtma tipi:
Gaz
Teçhizat:
Diğer
Teklifin yaşı:
332günler
Güncellendi:
331günler
Reklamı şikayet et
Yerellikler
Konum yaklaşık olarak verilmiştir, kesin adresi bilmiyoruz.
Tam adresi isteyin
Haritayı büyüt
Belediye olanakları
MOJ DOM - AGENCIJA ZA NEKRETNINE
Dragana Zorić
E-postayı Göster
Telefonu göster
Satıcıyla iletişime geçin
MOJ DOM - AGENCIJA ZA NEKRETNINE
Dragana Zorić
E-postayı Göster
Telefonu göster
Satıcıyla iletişime geçin
Benzer reklamlar
|
Yurtdışında benzer durumlar
|
Satılık
Daireler
Sırbistan