Satış
Kiralama
Blog
Hakkımızda
+ Özellik ekle
Menü
Teklifler listesi
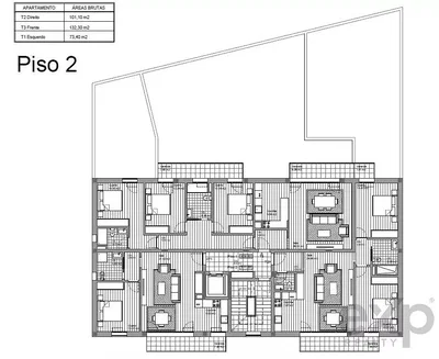
4
4
170 000 €
(2 024 € / m²)
Satış
2
1
84 m²
Haritada göster
Favorilere ekle
Paylaşmak
yatak odası
2
düz
84 m²
banyolar
1
kaldırmak
HAYIR
otopark
HAYIR
durum
Yeni inşaat
bodrum
HAYIR
teras
HAYIR
Tanım
Çevir İngilizce
Magnificent two-bedroom apartment in Carregal do Sal, situated in a privileged location, close to all essential services.
This property stands out ...
Tam açıklamayı göster
Parametreler
Ekipman ve özellikler
İnternet
Klima
Yapay zekâ tarafından üretildi
Açık yaşam alanı
Parametreler
Mülkiyet:
Diğer
Durum:
Yeni inşaat
bina tipi:
Diğer
Isıtma tipi:
Isı pompası
Teçhizat:
Diğer
Tüm parametreleri göster
Teklifin yaşı:
68günler
Güncellendi:
68günler
Reklamı şikayet et
Yerellikler
Konum yaklaşık olarak verilmiştir, kesin adresi bilmiyoruz.
Tam adresi isteyin
Haritayı büyüt
Belediye olanakları
eXp Portugal
Telefonu göster
Satıcıyla iletişime geçin
eXp Portugal
Telefonu göster
Satıcıyla iletişime geçin
Benzer reklamlar
Yurtdışında benzer durumlar
Satılık
Daireler
Portekiz