Satış
Kiralama
Blog
Hakkımızda
+ Özellik ekle
Menü
Teklifler listesi
12
12
12
726 639 PLN
(6 920 PLN / m²)
Satış
3
1
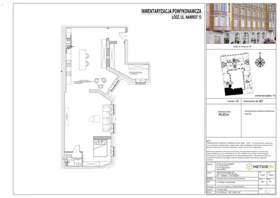
105 m²
Haritada göster
Favorilere ekle
Paylaşmak
yatak odası
3
düz
105 m²
banyolar
1
kaldırmak
HAYIR
otopark
HAYIR
durum
bodrum
HAYIR
teras
HAYIR
Tanım
Çevir İngilizce
Bezpośrednio od właściciela.Jestem pełnomocnikiem właściciela mieszkania. Skontaktuj się ze mną w sprawie kupna tego lub innego mieszkania w tej kamie...
Tam açıklamayı göster
Parametreler
Parametreler
Mülkiyet:
Kişisel
bina tipi:
Tuğla
Isıtma tipi:
Diğer
Teçhizat:
Diğer
Teklifin yaşı:
229günler
Güncellendi:
153günler
Reklamı şikayet et
Yerellikler
Konum yaklaşık olarak verilmiştir, kesin adresi bilmiyoruz.
Tam adresi isteyin
Haritayı büyüt
Belediye olanakları
Metr Kwadratowy
Joanna Laszok
E-postayı Göster
Telefonu göster
Satıcıyla iletişime geçin
Metr Kwadratowy
Joanna Laszok
E-postayı Göster
Telefonu göster
Satıcıyla iletişime geçin
Benzer reklamlar
|
Yurtdışında benzer durumlar
|
Satılık
Daireler
Polonya