Satış
Kiralama
Blog
Hakkımızda
+ Özellik ekle
Menü
Teklifler listesi
2 881 751 €
(14 778 € / m²)
Satış
4
2+
195 m²
Haritada göster
Favorilere ekle
Paylaşmak
yatak odası
4
düz
195 m²
banyolar
2+
kaldırmak
HAYIR
otopark
HAYIR
durum
Diğer
bodrum
HAYIR
teras
HAYIR
Tanım
Çevir İngilizce
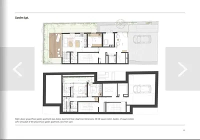
Garden Apartment for Sale – 65 Nordau Boulevard, Tel AvivJust a 5-minute walk from Hilton Beach and the Tel Aviv seafront, this exclusive boutique dev...
Tam açıklamayı göster
Parametreler
Parametreler
Mülkiyet:
Diğer
Durum:
Diğer
bina tipi:
Diğer
Isıtma tipi:
Diğer
Teçhizat:
Diğer
Teklifin yaşı:
98günler
Güncellendi:
38günler
Reklamı şikayet et
Yerellikler
Konum yaklaşık olarak verilmiştir, kesin adresi bilmiyoruz.
Tam adresi isteyin
Haritayı büyüt
Belediye olanakları
yochanof real estate
Telefonu göster
Satıcıyla iletişime geçin
yochanof real estate
Telefonu göster
Satıcıyla iletişime geçin
Benzer reklamlar
|
Yurtdışında benzer durumlar
|
Satılık
Daireler
İsrail