SUPA24
Oturma odası
Oturma odası
Oturma odası
Oturma odası
Oturma odası
183 800 €
(4 483 € / m²)
Satış
2
1
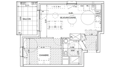
41 m²
Rue Clemenceau, Wintzenheim

yatak odası2
düz41 m²
banyolar1
kaldırmakEvet
otoparkHAYIR
durumDiğer
bodrumHAYIR
terasHAYIR

Tanım

iad France - Sarah Rozière (06 99 86 19 42) vous propose : Appartement T2 avec balcon à WintzenheimSituée rue Clemenceau à Wintzenheim, la résidence J...

Parametreler

Ekipman ve özellikler

Parametreler

Mülkiyet:
Diğer
Durum:
Diğer
bina tipi:
Diğer
Isıtma tipi:
Diğer
Teçhizat:
Diğer
Teklifin yaşı: 26günler
Güncellendi: 26günler

Yerellikler

Rue Clemenceau, Wintzenheim
Konum yaklaşık olarak verilmiştir, kesin adresi bilmiyoruz.

Belediye olanakları

IAD France


Benzer reklamlar

Yurtdışında benzer durumlar