SUPA24
Oturma odası
Oturma odası
Oturma odası
Oturma odası
Oturma odası
396 100 €
(5 501 € / m²)
Satış
3
1
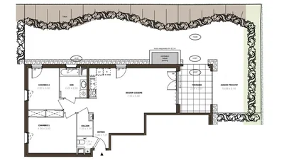
72 m²
Boulevard Georges Andrier, Thonon-les-Bains

yatak odası3
düz72 m²
banyolar1
kaldırmakEvet
otoparkHAYIR
durumDiğer
bodrumHAYIR
terasEvet

Tanım

iad France - Sarah Rozière (06 99 86 19 42) vous propose : Appartement T3 avec jardin à Thonon-les-Bains. Au cOEur de la résidence contemporaine Les J...

Parametreler

Ekipman ve özellikler

Yapay zekâ tarafından üretildi

TerasZeminAçık yaşam alanıDuş kabiniGüvenlikDoğal ışık

Parametreler

Mülkiyet:
Diğer
Durum:
Diğer
bina tipi:
Diğer
Isıtma tipi:
Diğer
Teçhizat:
Diğer
Teklifin yaşı: 26günler
Güncellendi: 26günler

Yerellikler

Boulevard Georges Andrier, Thonon-les-Bains
Konum yaklaşık olarak verilmiştir, kesin adresi bilmiyoruz.

Belediye olanakları

IAD France


Benzer reklamlar

Yurtdışında benzer durumlar