Satış
Kiralama
Blog
Hakkımızda
+ Özellik ekle
Menü
Teklifler listesi
9
9
9
525 000 €
(5 899 € / m²)
Satış
4
1
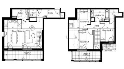
89 m²
Rue de la Janaie, Saint-Malo
Haritada göster
Favorilere ekle
Paylaşmak
yatak odası
4
düz
89 m²
banyolar
1
kaldırmak
Evet
otopark
HAYIR
durum
Diğer
bodrum
HAYIR
teras
HAYIR
Tanım
Çevir İngilizce
iad France - Sarah Rozière (06 99 86 19 42) vous propose : Appartement duplex T4 avec balcons à Saint-Malo.Située boulevard des Talards, au cOEur d’un...
Tam açıklamayı göster
Parametreler
Ekipman ve özellikler
Kaldırmak
Parametreler
Mülkiyet:
Diğer
Durum:
Diğer
bina tipi:
Diğer
Isıtma tipi:
Diğer
Teçhizat:
Diğer
Tüm parametreleri göster
Teklifin yaşı:
48günler
Güncellendi:
14günler
Reklamı şikayet et
Yerellikler
Rue de la Janaie, Saint-Malo
Konum yaklaşık olarak verilmiştir, kesin adresi bilmiyoruz.
Tam adresi isteyin
Haritayı büyüt
Belediye olanakları
IAD France
Telefonu göster
Satıcıyla iletişime geçin
IAD France
Telefonu göster
Satıcıyla iletişime geçin
Benzer reklamlar
|
Yurtdışında benzer durumlar
|
Satılık
Daireler
Fransa