SUPA24
Oturma odası
Oturma odası
Oturma odası
Oturma odası
Oturma odası
458 000 €
(9 347 € / m²)
Satış
2
1
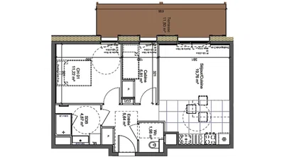
49 m²
Chemin des Greffiers, Montriond

yatak odası2
düz49 m²
banyolar1
kaldırmakEvet
otoparkHAYIR
durumDiğer
bodrumHAYIR
terasEvet

Tanım

iad France - Sarah Rozière (06 99 86 19 42) vous propose : Appartement T2 avec terrasse à Montriond.Au cOEur de la résidence contemporaine Le Kairn, i...

Parametreler

Ekipman ve özellikler

Yapay zekâ tarafından üretildi

TerasAhşap zemin

Parametreler

Mülkiyet:
Diğer
Durum:
Diğer
bina tipi:
Diğer
Isıtma tipi:
Diğer
Teçhizat:
Diğer
Teklifin yaşı: 12günler
Güncellendi: 12günler

Yerellikler

Chemin des Greffiers, Montriond
Konum yaklaşık olarak verilmiştir, kesin adresi bilmiyoruz.

Belediye olanakları

IAD France


Benzer reklamlar

Yurtdışında benzer durumlar