Satış
Kiralama
Blog
Hakkımızda
+ Özellik ekle
Menü
Teklifler listesi
24
24
24
349 000 €
(3 490 € / m²)
Satış
3
1
100 m²
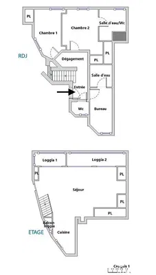
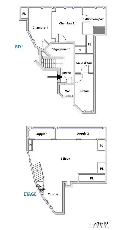
Boulevard Carnot, Le Cannet
Haritada göster
Favorilere ekle
Paylaşmak
yatak odası
3
düz
100 m²
banyolar
1
kaldırmak
HAYIR
otopark
HAYIR
durum
Diğer
bodrum
HAYIR
teras
Evet
Tanım
Çevir İngilizce
iad France - Amandine Fornetti vous propose: NOUVEAUTÉ sur LE CANNET - Hauteurs / Chemin des Tignes :A seulement 3km du Palais des Festivals de Cannes...
Tam açıklamayı göster
Parametreler
Parametreler
Mülkiyet:
Diğer
Durum:
Diğer
Enerji yoğunluğu:
D - Daha az ekonomik
bina tipi:
Diğer
Isıtma tipi:
Diğer
Tüm parametreleri göster
Teklifin yaşı:
1günler
Güncellendi:
1günler
Reklamı şikayet et
Yerellikler
Boulevard Carnot, Le Cannet
Konum yaklaşık olarak verilmiştir, kesin adresi bilmiyoruz.
Tam adresi isteyin
Haritayı büyüt
Belediye olanakları
IAD France
Telefonu göster
Satıcıyla iletişime geçin
IAD France
Telefonu göster
Satıcıyla iletişime geçin
Benzer reklamlar
|
Yurtdışında benzer durumlar
|
Satılık
Daireler
Fransa