Satış
Kiralama
Blog
Hakkımızda
+ Özellik ekle
Menü
Teklifler listesi
6
6
6
275 000 €
(3 618 € / m²)
Satış
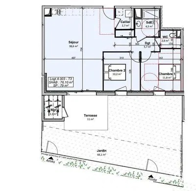
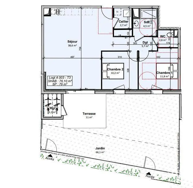
3
1
76 m²
Rue du Bourg, Givrand
Haritada göster
Favorilere ekle
Paylaşmak
yatak odası
3
düz
76 m²
banyolar
1
kaldırmak
Evet
otopark
HAYIR
durum
Diğer
bodrum
HAYIR
teras
Evet
Tanım
Çevir İngilizce
iad France - Maryse Bonny (07 71 66 73 30) vous propose : Pensée pour un quotidien fluide et confortable, ce logement neuf situé sur les hauteurs de G...
Tam açıklamayı göster
Parametreler
Ekipman ve özellikler
Kaldırmak
Parametreler
Mülkiyet:
Diğer
Durum:
Diğer
bina tipi:
Diğer
Isıtma tipi:
Diğer
Teçhizat:
Diğer
Teklifin yaşı:
3günler
Güncellendi:
1günler
Reklamı şikayet et
Yerellikler
Rue du Bourg, Givrand
Konum yaklaşık olarak verilmiştir, kesin adresi bilmiyoruz.
Tam adresi isteyin
Haritayı büyüt
Belediye olanakları
IAD France
Telefonu göster
Satıcıyla iletişime geçin
IAD France
Telefonu göster
Satıcıyla iletişime geçin
Benzer reklamlar
|
Yurtdışında benzer durumlar
|
Satılık
Daireler
Fransa