Satış
Kiralama
Blog
Hakkımızda
+ Teklif ekle
Menü
Teklif Listesi
18
18
18
180 000 €
(3 750 € / m²)
Satış
2
1
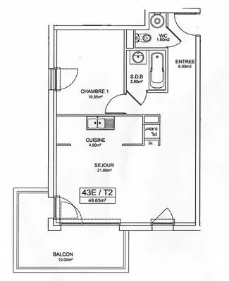
48 m²
Reims
Haritada Görüntüle
Favorilere ekle
Paylaş
yatak odası
2
alan
48 m²
banyolar
1
asansör
Evet
otopark
Hayır
durum
Diğer
bodrum
Hayır
teras
Hayır
Tanım
Çevir İngilizce
Découvrez cet agréable appartement de type 2 situé dans une résidence récente de 2009, à proximité immédiate de la Gare de Reims, dans le quartier dyn...
Tam açıklamayı göster
Parametreler
Ekipman & özellikleri
Asansör
AI tarafından oluşturuldu
Ayrı wc
Parametreler
Mülkiyet:
Diğer
durum:
Diğer
Enerji Etiketi:
D - Daha az tasarruflu
Yapı türü:
Diğer
Isıtma Türü:
Elektrikli
Tüm parametreleri göster
İlan yaşı:
363 gün
Güncellendi:
12 gün
İlanı Bildir
Lokasyon
Reims
Konum yaklaşık olup, tam adres bilinmiyor.
Tam adresi iste
Haritayı genişlet
Sivil olanaklar
Aux Clefs Des Sacres
Telefonu Göster
Satıcıyı İletişime Geç
Aux Clefs Des Sacres
Telefonu Göster
Satıcıyı İletişime Geç
Benzer İlanlar
|
Yurtdışında Benzerleri
|
Satılık
Daireler
Fransa