Satış
Kiralama
Blog
Hakkımızda
+ Özellik ekle
Menü
Teklifler listesi
6
6
6
373 000 €
(4 239 € / m²)
Satış
4
1
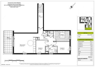
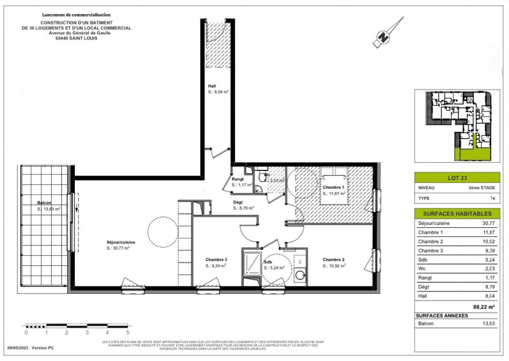
88 m²
Haritada göster
Favorilere ekle
Paylaşmak
yatak odası
4
düz
88 m²
banyolar
1
kaldırmak
Evet
otopark
HAYIR
durum
Diğer
bodrum
HAYIR
teras
Evet
Tanım
Çevir İngilizce
Découvrez ce beau F4 situé au centre de saint-Louis à proximité de la Suisse et de l'Allemagne. La résidence est située en hypercentre, à proximité de...
Tam açıklamayı göster
Parametreler
Ekipman ve özellikler
Kaldırmak
Yapay zekâ tarafından üretildi
Teras
Parametreler
Mülkiyet:
Diğer
Durum:
Diğer
Enerji yoğunluğu:
C - Ekonomik
bina tipi:
Diğer
Isıtma tipi:
Diğer
Tüm parametreleri göster
Teklifin yaşı:
397günler
Güncellendi:
396günler
Reklamı şikayet et
Yerellikler
Konum yaklaşık olarak verilmiştir, kesin adresi bilmiyoruz.
Tam adresi isteyin
Haritayı büyüt
Belediye olanakları
Loralis Immobilier
Telefonu göster
Satıcıyla iletişime geçin
Loralis Immobilier
Telefonu göster
Satıcıyla iletişime geçin
Benzer reklamlar
|
Yurtdışında benzer durumlar
|
Satılık
Daireler
Fransa