Satış
Kiralama
Blog
Hakkımızda
+ Özellik ekle
Menü
Teklifler listesi
1
1
324 000 €
(5 063 € / m²)
Satış
3
1
64 m²
Haritada göster
Favorilere ekle
Paylaşmak
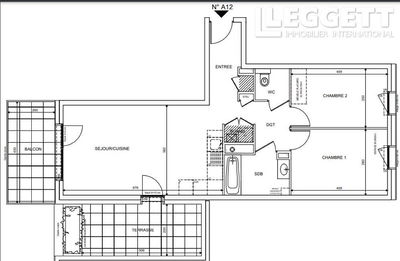
yatak odası
3
düz
64 m²
banyolar
1
kaldırmak
HAYIR
otopark
HAYIR
durum
Diğer
bodrum
HAYIR
teras
HAYIR
Tanım
Çevir İngilizce
A22099MAA74 - An off plan 2 bedroom apartment for sale in Thonon-les-Bains. Covered parking, balcony and terrace. Great location for people working ...
Tam açıklamayı göster
Parametreler
Yapay zekâ tarafından üretildi
Teras
Parametreler
Mülkiyet:
Diğer
Durum:
Diğer
bina tipi:
Diğer
Isıtma tipi:
Diğer
Teçhizat:
Diğer
Teklifin yaşı:
403günler
Güncellendi:
402günler
Reklamı şikayet et
Yerellikler
Konum yaklaşık olarak verilmiştir, kesin adresi bilmiyoruz.
Tam adresi isteyin
Haritayı büyüt
Belediye olanakları
Leggett Immobilier
Telefonu göster
Satıcıyla iletişime geçin
Leggett Immobilier
Telefonu göster
Satıcıyla iletişime geçin
Benzer reklamlar
Yurtdışında benzer durumlar
Satılık
Daireler
Fransa