Satış
Kiralama
Blog
Hakkımızda
+ Özellik ekle
Menü
Teklifler listesi
6
6
6
6 355 000 Kč
(119 906 Kč / m²)
Satış
2
1
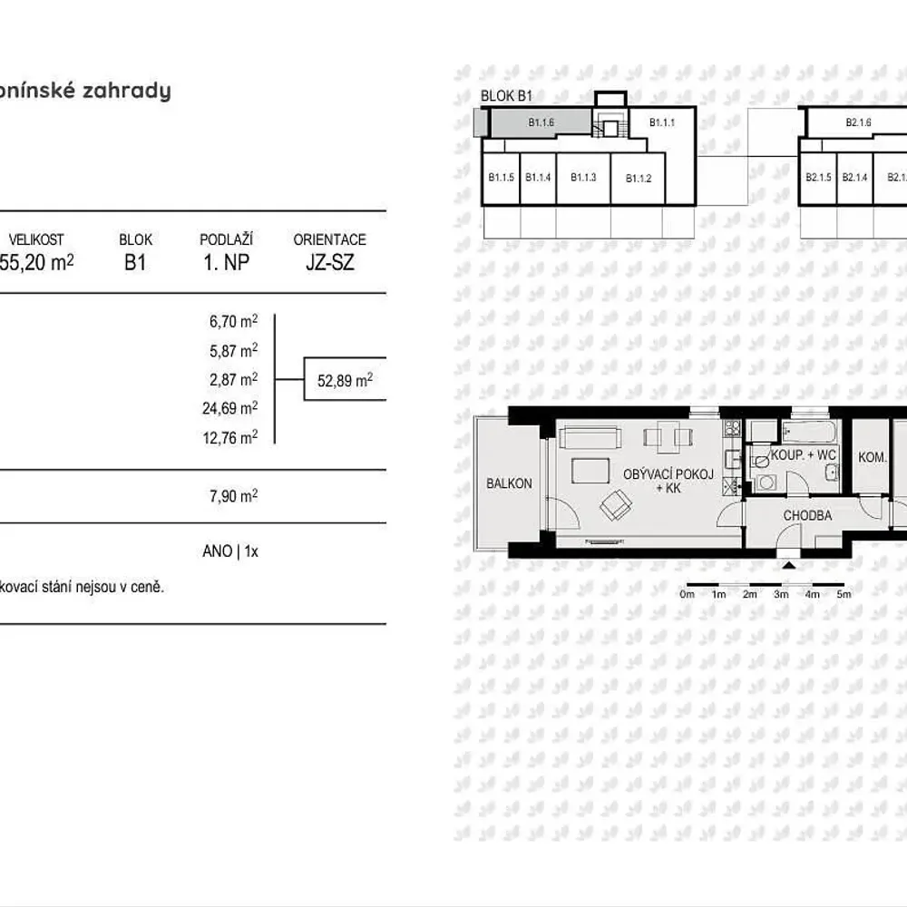
53 m²
Loudova, Olomouc
Haritada göster
Favorilere ekle
Paylaşmak
yatak odası
2
düz
53 m²
banyolar
1
kaldırmak
HAYIR
otopark
HAYIR
durum
Yeni inşaat
bodrum
HAYIR
teras
HAYIR
Tanım
Çevir İngilizce
Nová etapa projektu SLAVONÍNSKÉ ZAHRADY navazuje na již realizované budovy v okolí ulice Loudova a nabízí kvalitní domov pro rodiny s dětmi, mladé pár...
Tam açıklamayı göster
Parametreler
Yapay zekâ tarafından üretildi
Doğal ışık
Ahşap zemin
Parametreler
Mülkiyet:
Kişisel
Durum:
Yeni inşaat
bina tipi:
Diğer
Isıtma tipi:
Diğer
Teçhizat:
Eşyasız
Tüm parametreleri göster
Teklifin yaşı:
92günler
Güncellendi:
92günler
Reklamı şikayet et
Yerellikler
Loudova, Olomouc
Konum yaklaşık olarak verilmiştir, kesin adresi bilmiyoruz.
Tam adresi isteyin
Haritayı büyüt
Belediye olanakları
Carroll & Dohnal s.r.o.
Ing. Lenka Carroll
E-postayı Göster
Telefonu göster
Satıcıyla iletişime geçin
Carroll & Dohnal s.r.o.
Ing. Lenka Carroll
E-postayı Göster
Telefonu göster
Satıcıyla iletişime geçin
Benzer reklamlar
Yurtdışında benzer durumlar
Satılık
Daireler
Çekya
Olomoucký kraj
Olomouc
Nová Ulice
Nové Sady