Satış
Kiralama
Blog
Hakkımızda
+ Özellik ekle
Menü
Teklifler listesi
2
2
91 090 €
(1 283 € / m²)
Satış
Atipik
1
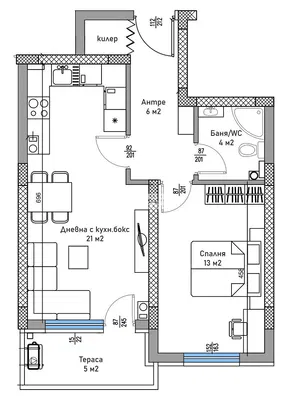
71 m²
Haritada göster
Favorilere ekle
Paylaşmak
yatak odası
atypical
düz
71 m²
banyolar
1
kaldırmak
HAYIR
otopark
HAYIR
durum
Diğer
bodrum
HAYIR
teras
HAYIR
Tanım
Çevir İngilizce
Оферта 68034: Специално предложение - Новоизградена сграда, намираща се в престижен и предпочитан район. Разпределения - Предлагаме на Вашето внимание...
Tam açıklamayı göster
Parametreler
Yapay zekâ tarafından üretildi
Teras
Parametreler
Mülkiyet:
Diğer
Durum:
Diğer
bina tipi:
Diğer
Isıtma tipi:
Diğer
Teçhizat:
Diğer
Teklifin yaşı:
48günler
Güncellendi:
35günler
Reklamı şikayet et
Yerellikler
Konum yaklaşık olarak verilmiştir, kesin adresi bilmiyoruz.
Tam adresi isteyin
Haritayı büyüt
Belediye olanakları
КОНДОР - НЕДВИЖИМИ ИМОТИ
Telefonu göster
Satıcıyla iletişime geçin
КОНДОР - НЕДВИЖИМИ ИМОТИ
Telefonu göster
Satıcıyla iletişime geçin
Benzer reklamlar
|
Yurtdışında benzer durumlar
|
Satılık
Daireler
Bulgaristan