Prodej
Pronájem
Blog
O nás
+ Přidat nemovitost
Menu
Výpis nabídek
9
9
9
Cena na dotaz
Pronájem
1
1
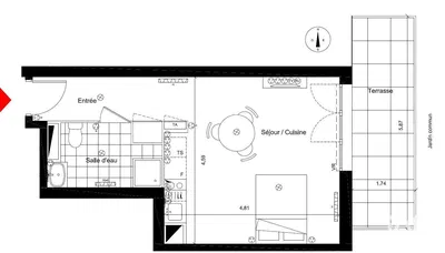
31 m²
Zobrazit na mapě
Do oblíbených
Sdílet
ložnice
1
plocha
31 m²
koupelny
1
výtah
Ano
parkování
Ne
stav
Ostatní
suterén
Ne
terasa
Ano
Popis
Přeložit do angličtiny
iad France - Nicolas Vysavat (06 51 41 93 21) vous propose : Location nue soumise au dispositif de la loi Pinel (sous conditions de ressources)Veuille...
Zobrazit celý popis
Parametry
Vybavení & vlastnosti
Výtah
Parametry
Vlastnictví:
Ostatní
Stav:
Ostatní
Energetická náročnost:
A - Extrémně úsporná
Typ budovy:
Ostatní
Typ vytápění:
Ostatní
Zobrazit všechny parametry
Stáří nabídky:
1 dní
Aktualizováno:
1 dní
Nahlásit inzerát
Lokalita
Lokalita je orientační, neznáme přesnou adresu.
Požádat o přesnou adresu
Zvětšit mapu
Občanská vybavenost
IAD France
Zobrazit telefon
Kontaktovat prodejce
IAD France
Zobrazit telefon
Kontaktovat prodejce
Podobné inzeráty
|
Podobné v zahraničí
|
Kiralık
Daireler
Fransa