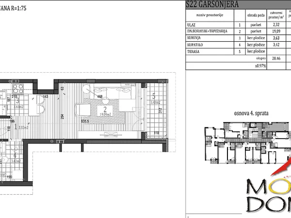
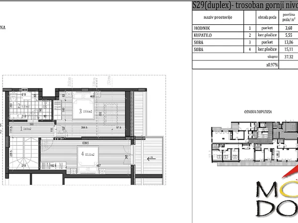
Nova Detelinara! Izgradnja stana visokog kvaliteta na fenomenalnoj lokaciji! Stan, strukturno odličnog rasporeda i veličine, nalazi se na jednoj od najurbanijih lokacija grada Novog Sada koja mladim…
Ve hemen size yeni teklifler hakkında bildirim göndereceğiz.